
|
|||||||||||||||||
| 商品購入についてのご案内 | |||
|
|||





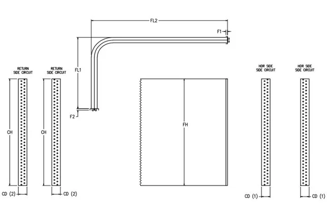
? 재질: 스테인레스 스틸, 구리, 알루미늄, Cu-Ni, 황동, 티타늄 ? 직경: 5mm, 7mm, 7.94mm, 9.52mm, 11.5mm, 12mm, 12.7mm, 15mm, 15.8mm 20mm, 25mm ? 매끄럽고 두꺼운 벽, 홈, 슈퍼 그루브 (깊은 홈) ? 여러 회로에 연결


? 재질: 알루미늄, 구리 스테인리스 스틸, 티타늄 핫 딥 카본 스틸, 골드
? 코팅:
E 코팅> 알 에폭시> 친수성
? 두께: 0.1-2mm
? 유형: 웨이브 핀, 플랫 핀, 윈도우 핀
? 재질: 아연 도금 강철, 알루미늄, 스테인레스 스틸 구리, 황동
? 두께: 1-5mm
? 콜레트가 있거나없는 엔드 플레이트
? 다양한 측면 플레이트 디자인







